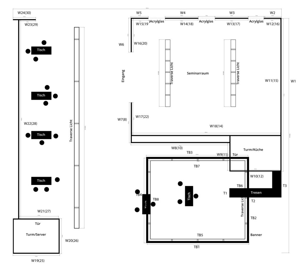
Im Mai 2025 gestalteten wir den Messestand der Buchner GmbH auf der Therapie Leipzig. Auf einer Fläche von 224 Quadratmetern entwarfen wir nicht nur die Bereiche und die Raumaufteilung für Frontdesk, Besprechungsinseln und den Seminarraum, sondern auch die gesamte Möblierung. Auf Grundlage des von uns 2024 entwickelten neuen Erscheinungsbildes bildet dieser Messestand gemeinsam mit seinem kleineren Vorgänger auf der TheraPro Stuttgart im Februar 2025 einen stimmigen, dreidimensionalen Auftritt für das expandierende Softwareunternehmen.

























